Description
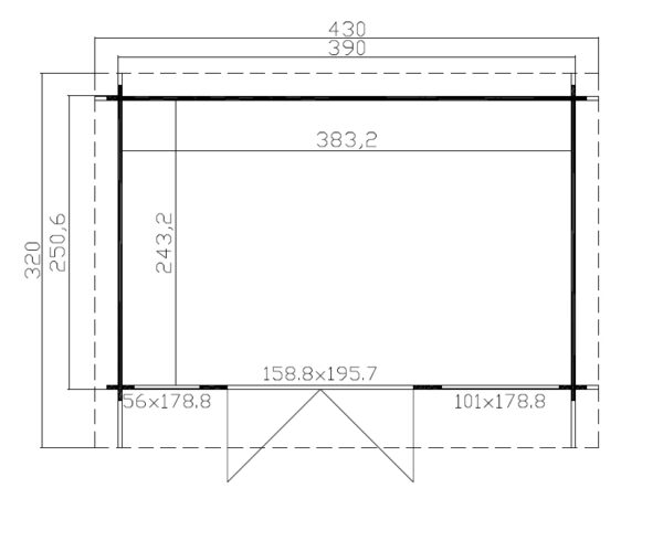
The Dorset log cabin features the same style and high quality windows as the popular Barbados models but without the side window and with a slightly thinner wall thickness of 34mm. The Dorset provides stylish design at an affordable cost.
- 34mm thick walls made from solid slow grown Spruce
- 20mm tongue and groove floor and roof boards
- Double glazed timber window and doors
- Please click to view DIY or Self Assembly Log Cabin Instructions
The majority of our log cabins are well suited to self build projects by confident DIY’ers and our prices include VAT, FREE delivery* and fitting instructions. If you would like to use our installation services please contact us to discuss the options you require.








